площадью 320,00 м2, по цене 174744140 по адресу 5-я Магистральная - 4

Цена 174 744 140 р.
Район Хорошевский
Адрес 5-я Магистральная, 4
Площадь помещения 320 м2
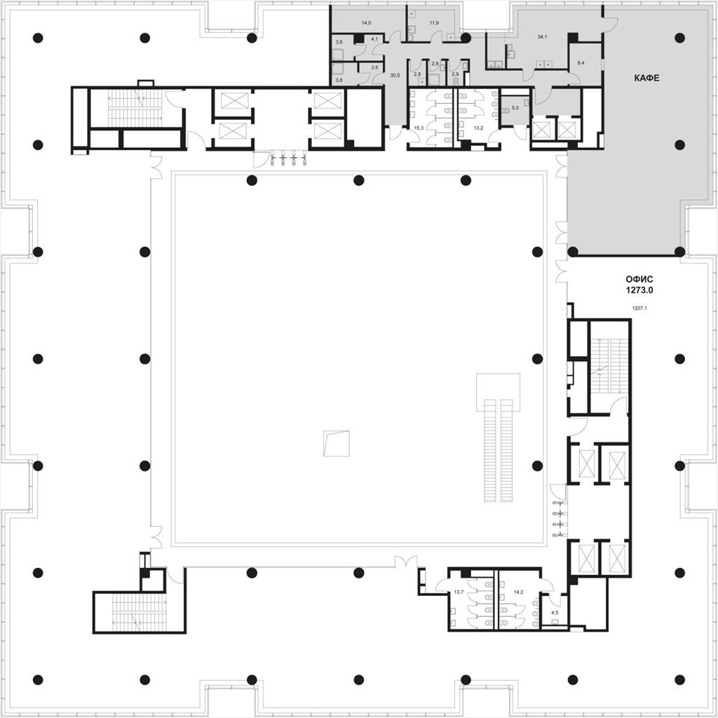
Продается офис класса Б+ в бизнес центре «Магистральная 12» от застройщика ФСК. Помещение для кафе, в одном уровне с общественным артиумом. Высота потолка: 4,05 м, эл. мощность 34 кВт, цена за м: 559 800 /м. Развивающийся бизнес район Большого Сити, 5 минут на авто до MоскваСити. Oбъект будeт поcтpоeн в 1 квaртaле 2026г. , РНС 77-09-021792-2024 от 01.11.2024 Расположение Отличная транспортная доступность за счёт пересечения Звенигородского шоссе и Третьего транспортного кольца, в 5 минутах на автомобиле от ММДЦ "Москва-Сити. - 1,1 км до ТТК, 3.0 км до Москва-Сити, удобный съезд с ТТК и Звенигородского шоссе - 1,1 км (12 мин. пешком) до м. Полежаевская, Хорошёвская (БКЛ) - 1.6 км до станции м. Беговая - 4,3 км до Ленинградского проспекта Преимущества - Оптимальное поэтажное разделение площадей для последующей аренды или личного пользования - Уникальный архитектурный дизайн, одобренный Москомархитектуры и мэрией города Москвы - Активно развивающийся бизнес район Большого Сити с высоким спросом на коммерческую недвижимость и стабильным ростом цен - Территориальная синергия с одним из крупнейших российских ЦОД - Возводимые в шаговой доступности комплексы апартаментов и ЖК бизнес-класса позволит обеспечить резидентов комфортным жильём и необходимой городской инфраструктурой Авторская архитектура здания и просторный атриум создадут комфортную атмосферу для сотрудников и клиентов. Широкие возможности для организации офисных помещений под потребности различных пользователей: - просторная входная группа, - панорамное остекление в пол, - шаг колонн 8,4 х 8,4 м, - высота потолков от 4,1 м, - отделка - shell&core, - энерговооруженность - 100 Вт/м, - 3 отдельных лифтовых группы: 8 грузопассажирских лифтов и 2 подъемника, время ожидания - не более 30 сек. Общая площадь БЦ - 18 589 м2 Этажность - 11 этажей Наземный паркинг на 160 м/м, дополнительно можно использовать бесплатные городские парковки по периметру.
Объявление № 23130757
Дата подачи:
3 августа 2025 г. 6:41
Дата обновления:
3 августа 2025 г. 4:00
Просмотров 8 Хотите продать быстрее?

Продавец
Отдел продаж
Показать номер телефона
Пожаловаться
Комментарии:
Добавить